Historia de una casa con historias: memorias de la Familia Figueroa. Departamento de Paclín, Catamarca

 

Emilio Alejandro Villafañez* y Ezequiel Fonseca**

 

 

Introducción

 

En ocasiones, al intentar reconstruir la historia de un lugar, son las personas las que asumen el protagonismo como sujetos principales. Sin embargo, no son frecuentes los estudios sobre las edificaciones, ya sea tal vez porque no se las considere con vida o porque no puede verse como una cosa que tiene entidad propia y que forma parte de los circuitos de la vida de las personas[1], como el escenario en donde se desarrolla fundamentalmente la vida cotidiana, considerado como un “lugar” que debe ser y conocer.

 

Puesto que partimos de la concepción de lugar como lo plantea Escobar, el hecho es que el lugar “como la experiencia de una localidad específica con algún grado de enraizamiento, linderos y conexión con la vida diaria, aunque su identidad sea construida y nunca fija, continúa siendo importante en la vida de la mayoría de las personas, quizás para todas[2]. Donde existe un sentimiento de pertenencia que es más importante de lo que queremos admitir, lo cual hace que uno considere la idea de “regresar al lugar”.

 

Pretendemos recorrer la historia de una casa, propiedad del señor Wilfrido Figueroa, ubicada en la actual Villa de La Merced (Dpto. Paclín, Prov. Catamarca), con el objetivo de destacar el simbolismo que expresa a través de su morfología y sus características arquitectónicas; así también como los distintos usos que se le dio. Para ello partimos del supuesto que la construcción de la identidad de esta localidad, recurre cotidianamente a los recuerdos de un pasado de esplendor y bonanza, donde la casona de los Figueroa sería la expresión acabada de ese lugar y de un determinado momento; y la que actuaría como fenómeno de enraizamiento de su localidad y es identificada con el lugar/localidad/identidad, formando parte del circuito de la vida cotidiana, de los pobladores.

 

Ante lo cual, procuramos acercarnos a esta problemática a través de las técnicas de la arqueológica histórica, por un lado, para la información vinculada a la cultura material, y a su vez, aplicando  paralelamente dos metodologías, como la genealogía y la historia oral, que nos permitirá el acceso a otro tipo de información, obteniendo anécdotas y mitos; para indagar la importancia de esta casona que por años funcionó como cabecera de estancia y como residencia de unas de las familias más influyentes de la zona. Creemos que los límites disciplinares tradicionales son inexistentes, particularmente aquellos que dividen la arqueología de la historia o de la antropología. Es por esto, que nos hemos propuesto realizar un acercamiento a la reconstrucción de la vida en torno a esta casa. En relación a ello, optamos por basarnos en un exhaustivo análisis bibliográfico, muchos de los cuales ya fueron publicados y otros relevados en los archivos provinciales; esto nos ha permitido realizar una historia de la Familia Figueroa desde los primeros años de la conquista española en la zona, pasando por la creación de lo que hoy se conoce como Villa de La Merced, actual cabecera departamental de Paclín, Prov. de Catamarca, hasta llegar a la historia reciente de la familia, por medio de una entrevista no dirigida que fue realizada a una bisnieta de Wilfrido Figueroa, la cual nos ha abierto la posibilidad de un amplio campo de nuevos datos que nos ayudan a ampliar nuestra mirada hacia aquellos tiempos de gloria en la construcción de la actual Villa de La Merced.

 

 

Contexto Histórico. Las mercedes de tierra en Paclín

 

Lo que en la actualidad se conoce como el Departamento Paclín, en épocas de la colonia estuvo formado por dos mercedes de tierra (Paquilingasta y Balcosna), y una encomienda de indios, en Amadores[3].

 

En relación con la temática de este trabajo, nos limitaremos al estudio de la merced de Paquilingasta. Ésta es la primera de la que se tienen registros escritos para Catamarca[4], y perteneció a Diego de Vera desde el año 1589. Tras su muerte, su viuda, Juana de Villegas, se casó con Diego Graneros de Alarcón, quien se hace acreedor de Paquilingasta en 1609[5].

 

Por problemas económicos, los herederos de Graneros de Alarcón venden en su momento lo que se llamaba Finca de San Lorenzo de Paquilingasta y la compra el ex Gobernador del Tucumán don Lucas de Figueroa y Mendoza alrededor de 1660. Luego de su muerte, se hace cargo de toda la finca su hijo Luís, quien a su vez deja la propiedad bajo responsabilidad de su primogénito, quien llevaba el mismo nombre de su padre. Este último tiene como hija a Catalina de Figueroa y Mendoza que se casa con Carlos de Villagrán, los que tuvieron como hijos a Jerónimo, Juana Rosa y María Manuela, estas dos últimas las Beatas Villagrán, fundadoras del “Colegio de las Niñas Educandas”[6].

 

A fines del siglo XVIII muchas propiedades van a parar a la Comisión Municipal de las Temporalidades, quienes las administran por algún tiempo. Una fracción de Paquilingasta pasa a manos de la congregación religiosa de “Nuestra Señora de la Merced”, hasta el año 1821, motivo por el cual la actual Villa de La Merced obtiene dicho nombre. Posteriormente por venta particular recae la propiedad en la familia Herrera, y por sucesión a la familia Figueroa.

 

 

La Villa de La Merced y los Figueroa

 

Recorrer la historia de la Villa de La Merced y no encontrarse con algún integrante de la familia Figueroa resulta una tarea imposible, ya que sus miembros tuvieron una importante participación, tanto en la creación como en la posterior transformación de la Villa.

 

El Departamento Paclín fue creado en el año 1869 a través de la Ley Nº 96 y La Merced, 7 años después, por pedido de don Augusto Casto Figueroa, a través de la Ley Nº 277[7]. En el artículo 1° dice: “Cédense los derechos que tiene la Provincia a los terrenos sin agua, que D. Augusto C. Figueroa solicita para la fundación de una Villa en el Departamento de Paclín”. Según los registros encontrados en el Archivo Histórico, la finca de La Merced fue puesta en venta por el Gobierno, y el 30 de octubre de 1882 se procedió a abrir las propuestas. Fueron don Manuel A. Figueroa y don Manuel V. Salas las personas que se presentaron para su compra. La finca de “La Merced” fue vendida el 11 de noviembre de 1882 a Manuel V. Salas, “mediante la suma de cuarenta y dos mil pesos bolivianos el inmueble conocido por finca de “La Merced…”, y en aquél momento sus linderos eran los siguientes:

 

al Norte, con propiedad de don Cirilo Herrera, denominado El Totoral y terrenos de la finca de Paclín pertenecientes al Colegio de Huérfanos, al Naciente el filo de la cumbre, al Sud, hasta dar con los terrenos, de la Merced del pueblo de indios de Amadores y por el Oeste, el río con el agua que corresponde a la finca[8].

 

Cabe mencionar que dichas tierras eran propiedad de los Padres Mercedarios y el Gobierno provincial hace el traspaso de ellas a través de una expropiación y de su saneamiento de conformidad a derecho, aunque la excepción de esta venta es el terreno que por ley Nº 277 de la Honorable Legislatura del año 1876 se donó para la Villa de La Merced, el cual consta del plano de esa Villa realizado por el Ingeniero Carlos Werning:

 

luego el señor Manuel V. Salas (…) vende al señor Wilfrido Figueroa, por intermedio del martillero Público don Máximo Reyes, por la cantidad de veinte mil trescientos veinte pesos moneda nacional, el inmueble denominado “finca de La Merced” de propiedad del expresado señor Manuel V. Salas[9].

 

Se sabe que fue don Manuel Augusto Figueroa, casado con Romualda Ignacia de Herrera, unos de los primeros pobladores en asentarse en La Merced. De este matrimonio nació Augusto Casto Figueroa, quien se unió a Margarita Carrizo y tuvieron como hijo a Wilfrido Figueroa. Todos ellos, personajes influyentes para La Merced.

 

La casa en donde transcurren nuestros relatos perteneció a Wilfrido Figueroa. Éste se casó con Domitila Tapia y sus hijos fueron Manuel A., Casto Augusto, Humberto José y Wilfrido Segundo, mayores de edad al momento de testar su padre, y Blanca, Domitila Carmen y Julio Argentino, menores de edad[10].

 

 

Imagen N° 1: Fragmento de la genealogía de la Familia Figueroa

 

 

Wilfrido Figueroa muere el 8 de agosto de 1909 a la edad de 56 años. Podemos afirmar, después de revisar su mensura y el juicio sucesorio, que todos los terrenos de la Villa le pertenecían, por herencia de Augusto y por la compra al señor Salas[11].

 

Este dato aporta algunas evidencias interesantes para conocer cuándo se construyó la casa en cuestión. Algunos relatos orales hacían mención al hecho de que el inmueble estaba en pie antes de que el ingeniero Werning realizara la mensura y plano de la Villa. Posiblemente estos relatos provienen de una cita que se extrajo del libro histórico de la Escuela Nº 292, donde su director, Andrés Flores, expresa:

 

Se menciona que en el año 1860 había dos casas de construcción antigua y eran de la familia Figueroa, dueña de la Estancia La Merced (…) Todas estas casas estaban edificadas a orilla del Camino Real que unía Catamarca con Tucumán (…) éste era por donde actualmente se va a Monte Potrero (acortando distancia), por el lado Este de la plaza de La Merced hasta el Río Paclín, donde se une con la ruta 38, donde hay un pequeño puente o alcantarilla, y que hasta hace pocos años era la referida ruta, llamada en este trayecto: “Avenida de las acacias”; por las plantaciones que hay a la vera del camino[12].

 

Sin embargo, al inspeccionar el plano de Werning observamos que las casas en cuestión están a varios cientos de metros alejadas del lugar donde se encuentra la propiedad de Wilfrido Figueroa. Es probable que haya existido un error al interpretar el texto, y que las edificaciones marcadas en el plano fueran del padre y del abuelo de Wilfrido.

 

 

Imagen N° 2: Plano del Ing. Carlos Werning, donde se pueden apreciar las pocas casas construidas en la época a orillas del Camino Real, y el lugar vacío en la esquina sur-este del espacio dejado para la plaza, donde en la actualidad se encuentra construida la casa de don Wilfrido Figueroa (AHC, Exp. 8966, 1918).

 

 

Lo expuesto nos expresa claramente que esta casa no fue construida hasta pasado el año 1878 (fecha en que Werning presenta el plano), y posiblemente su construcción empezó después de 1884, cuando Wilfrido compra la finca, pues su ubicación para la época era de las más privilegiadas, ya que se encontraba con disponibilidad de agua, al frente de la plaza y a orillas del Camino Real.

 

 

Descripción Densa  de la Casa, como cultura material

 

A pesar del paso del tiempo y del deterioro sufrido por la casa[13], esta sigue siendo un testigo arquitectónico, tanto por su morfología como por el simbolismo que conlleva su presencia en la localidad de La Merced.

 

Su ubicación, frente a la plaza principal, y sus dimensiones reflejan la importancia y distinción de sus habitantes en los albores de la localidad.

 

La casona denota características diferenciadas de acuerdo con los distintos momentos de construcción. Única en su tipo, corresponde a un conjunto de espacios construidos en forma discontinua, de acuerdo con la sucesión de usos y con las distintas necesidades que surgen de las nuevas tecnologías y costumbres que fueron apareciendo.

 

 

Imagen N° 3: Vista del segundo piso de la casa

 

 

Esta vivienda presenta tres accesos bien diferenciados: uno por la esquina, con una resolución muy sencilla, acompañando la uniformidad de los perfiles en ambas calles. Los restantes  se encuentran por las calles laterales.

 

La edificación se mantiene relativamente uniforme en el perfil Oeste, aunque se pueden ver dos momentos de construcción en la discordancia que presenta el sector Sur de este ala, visible desde afuera. Mientras tanto, en el perfil Norte se jerarquiza el ingreso con la doble planta y el característico balcón en el frente y contrafrente.

 

Algo que destaca a esta casa sin duda es la segunda planta, que constituye un “hito urbano” referente en la localidad. El segundo piso es lo que la identifica, jerarquiza e individualiza dentro de La Merced. Aunque el piso y el techo han colapsado totalmente y, solamente los muros se mantienen con los particulares colores de las pinturas y estucos, marca una característica única y que persiste a pesar del tiempo.

 

Un sector muy importante en la casona es el patio, ya que con sus galerías internas y el muro que lo cierra por el sector Sur con un portal de doble hoja, le dan cohesión a la construcción, pero sobre todo privacidad y diferenciación del exterior. A su vez, el jardín interior está delimitado por una serie de pilares construidos con ladrillos comunes y rematados con una moldura piramidal.

 

El patio está circundado por galerías de clásicas tejas españolas en su parte Norte y Oeste. Éstas sobresalen por sus particulares columnas, que tienen una gran riqueza formal. Están compuestas con un basamento cúbico, y el cuerpo facetado hexagonalmente que remata en un volumen cuadrado con molduras. Éstas sostienen grandes vigas de quebracho que soportan una cornisa de mampostería, la que, en el sector Oeste, presenta los desagües pluviales de tubos cerámicos.

 

   

 

 

 

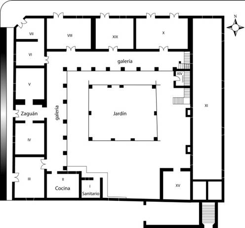
Imagen N° 4: Plano de la casa, junto con los números de las habitaciones que servirán de guía a lo largo de todo el relato del texto

 

 

En el sector Este se encuentra la escalera que posibilita el acceso al segundo piso. Ésta no es la concebida originalmente, ya que se habría modificado para albergar un baño que, según el tipo de revestimiento y cercanía con la casa es mucho más  nuevo que el que está ubicado en el sector Sur, que posee cerámicas y azulejos ingleses, pero que está totalmente desmantelado.

 

En el lado posterior del ala Este se ubica el fogón original, del que se ha derrumbado el muro Oeste y su techo está totalmente colapsado. Aquí se puede observar cómo esta construcción es posterior a la mayor parte de la casa, ya que no se encuentran trabas en la mampostería, indicador que denotaría una construcción simultánea. Otra posibilidad es que, en realidad haya sido la habitación Este la que fue construida posteriormente. Esta hipótesis se debe al doble muro que presenta en un segmento y la falta de trabas ya mencionadas con la habitación que funcionaba como cocina.

 

Otro sello muy particular de la vivienda es la gran habitación ubicada en el ala Este. Este espacio es emblemático y único, usado como lugar de producción de la época. Aún hoy se pueden encontrar maquinarias y herramientas de trabajo, como una vieja enfardadora, y un tipo de piletón de mampostería o recinto de acopio de granos. Estos son vestigios de la actividad productiva que se desarrollaba en torno a este mega-espacio. Esta habitación es la  única que tiene piso entablonado de listones de madera. Debajo se encuentra el sótano.

 

El sótano presenta una particularidad muy interesante; tiene una abertura doble con relación directa al exterior, que desemboca fuera de los parámetros cerrados de la vivienda, y lo comunica con el sector productivo rural. Sin embargo, presenta otro acceso que proviene directamente del interior de la vivienda, específicamente desde una de sus galerías.

 

Sus muros, totalmente construidos en mampostería de ladrillos y techo de tirantería de madera con bovedillas, presentan gargantas de iluminación y ventilación. Su ubicación dentro del conjunto de la vivienda es clave por su relación con la casa y la producción rural.

 

La construcción se ha desarrollado en diferentes etapas, como ya lo hemos mencionado, lo que se observa en los desprendimientos de revoques, evidencia de la diferenciación sectorial en el método constructivo: muros de adobe y también en calicanto, este último, el lugar donde se eleva la planta alta sobre la fachada Norte.

 

 

Un acercamiento a través de la historia Oral

 

Hay que reconocer que el documento escrito siempre ha sido considerado de mayor valor y cargado de legitimidad en el campo de la historiografía. Y la aceptación e incorporación de la oralidad se ha dificultado un poco en su desarrollo, no obstante se consideró al documento oral y al rescate de la oralidad como una técnica o método valido para la historiografía. Ya que la historia oral “pretende recolectar un material virgen que podrá ser utilizado posteriormente, de hecho proporciona una documentación distinta para el conocimiento histórico[14].

 

En efecto, el recurso al testimonio y a la historia de los sujetos protagonistas de la historia, nos parece de suma importancia y un acto de justicia histórica rescatar este hecho, por cuanto da cuenta de la originalidad de entrar al tema, puesto que la historia oral devuelve a los individuos su papel en la historia y recupera la subjetividad que la historia tradicional negaba por ser incompatible con la construcción del conocimiento científico y por pertenecer al ámbito de la literatura.

 

A medida que los historiadores orales avanzaban en la aplicación de esta metodología y tomaban más en cuenta los planteamientos de la nueva teoría de la historia, la necesidad de replantear una definición de la entrevista de historia oral devino un compromiso central para sus practicantes. Así, la historia oral ha cuestionado la objetividad defendida por la historia científica o positivista y ha puesto en tela de juicio la tarea de la historia como forma de explicación de la realidad a partir de leyes, para sugerir en cambio una historia interesada en las interpretaciones, entendidas como conocimiento con consenso de verdad, elaboradas por sujetos, actores y objetos de la historia[15].

 

Evidentemente la producción de un relato histórico implica reflexionar sobre los problemas del método, donde entra en juego la afirmación de sujeto y el discurso que éste produce. Se trata de una tensión que opone individuo a colectivos, objetividad a subjetividad. Sería como la crisis de la totalidad y el triunfo de la particularidad. Pues en este contexto la historia individual en la medida que es recuperada por el relato del sujeto, apuntaría a la elaboración de un producto cultural que reforzaría los procesos identitarios locales.

 

Si “historia” significa el “conjunto de los hechos ocurridos en tiempos pasados” y “oral” lo “expresado con palabras habladas”, la unión de ambas, “historia oral”, es esto y mucho más. No define un determinado tipo de historia, basada exclusivamente en la tradición oral, sino que supone fundamentalmente el uso y la valoración positiva de las fuentes orales como una técnica específica de investigación dentro de la historia contemporánea; generalmente también una labor de recuperación de testimonios de personas que vivieron esa época y que de otro modo se perderían irremediablemente (Mateo, 2004)[16]. No obstante, se reconoce a la entrevista como la materia prima de la historia oral que posibilita según Guber

 

cierta información puede obtenerse sólo parcialmente a través de observación: los sistemas de representaciones, nociones, ideas, creencias, valores, normas (…) la entrevista es una de las técnicas más apropiadas para acceder al universo de significaciones de los actores[17].

 

 

Entre los recuerdos de Hebe Correa de Gómez

 

Intentando una aproximación diferente a la historia de La Casa de La Merced, nos hemos puesto en contacto con Hebe Correa de Gómez, una de las bisnietas de Wilfrido y Domitila, siendo ella una de las pocas personas que aun quedan con vida, y que vivió  parte de su historia.

 

Por medio de una entrevista no dirigida con Hebe, pretendemos acceder a través de hechos, opiniones, recuerdos; desarrollar una relación diádica[18] que nos lleve en un viaje a través de su visión de su universo[19], al contexto de mediados del siglo XX, cuando la casa se hallaba en su esplendor y era visitada asiduamente por nuestra entrevistada. De este modo pretendemos entender la perspectiva de Hebe, donde nos relata:

 

En aquel tiempo momento, la casa hacia las veces de un gran casco de estancia desde donde se administraba toda la finca y a su vez, era un importante foco de la actividad social en toda la villa. Pintada por entonces con amarrillo suave, se presentaba como una imponente obra arquitectónica que dominaba la creciente Villa de La Merced.

 

Con su doble planta, aún hoy se destaca en el paisaje como símbolo del centro coordinador de las funciones productivas de la zona. De la misma manera, representa uno de los principales ejes en torno al cuál giraba la vida social y cultural de la población. Su ubicación, frente a la plaza no hace más que reafirmar la importancia antes mencionada.

 

El ingreso a la casa se realizaba cotidianamente por medio del zaguán ubicado en el ala Oeste de la construcción o bien por una puerta en el lado Sur (ver imagen I). La entrada de la esquina, por su parte, sólo era utilizada para ocasiones especiales desde donde se accedía a la sala de recepción… (abarcaba las habitaciones VI y VII de nuestro plano).

 

Parte de esta gran sala servía de comedor diario durante las épocas más frías. En el verano, en cambio, era usual trasladar la mesa hacia la galería donde las temperaturas no eran tan altas. -(La habitación V)-  era considerada como un comedor de lujo y era utilizado para agasajos especiales, cuando eran invitadas distintas personalidades a la casa. Era el cuarto más decorado, con finos muebles de estilo francés, muchos de ellos traídos por mi bisabuelo, posiblemente desde puertos chilenos. Si había algún invitado que debían pasar varios días en la casa, también tenían su propio dormitorio (en la habitación IX).

 

En el centro de la casa se disponía un bello patio flanqueado al norte y oeste por galerías de tejas españolas. En la parte central se encontraba el jardín, circundado por pilares, desde donde colgaban enredaderas, y unidos entre sí mediante un tejido que impedía que los niños ingresen.

 

Sobre ello, Hebe nos comenta:

 

Barbarita, que era la ama de llave, no nos dejaba entrar porque siempre cortábamos plantitas, florcitas… había pájaros; jaulas con pájaros en la galería… y en el medio del jardín había un aljibe.

 

Barbarita, el ama de llaves, y su esposo, Ramón Rosa Amador, encargado de la finca, residían en la habitación X:

 

eran los únicos que vivían permanentemente en la casa, además de sus propietarios y familiares. Ya en el segundo piso, se encontraba el escritorio de mi bisabuelo, un lugar envuelto de prohibiciones. Las excusas para impedir el acceso eran la peligrosidad de las escaleras para los más pequeños, pero lo cierto es que, este lugar era donde mi bisabuelo guardaba todos sus papeles y desde donde llevaba la administración de la hacienda.

 

Hebe nos contó como en una de esas escapadas de niños, rompiendo las reglas subieron al altillo,

 

allí había baúles, muchos baúles, baúles antiguos…, donde había papeles, era el escritorio de mi bisabuelo, tenia una mesa grande con un sillón y tenia una perspectiva de vista muy clara, se veía el totoral desde una ventana y desde aquel otro lado se veía la entrada de Catamarca,…se ve que mi bisabuelo desde ahí miraba todo, estaba muy bien hecha estratégicamente la casa.

 

En el sótano, por otro lado, se acopiaban parte de los productos obtenidos en la finca. Nos cuenta Hebe que

 

para poner las cosechas, para poner el tabaco, por que el tabaco siempre tiene que estar en lugares oscuros, y ahí tenían el tabaco y las cosas que eran perecederas, y las no perecederas y las que podían picarse un poco más las tenían en la parte de arriba que era más ventilado, ahí ponían la papa, la cebolla que eso rápido se perdía, papa, cebolla a veces también maíz.

 

La habitación II, en un primer momento fue interpretada por nosotros como la cocina, en realidad, en épocas anteriores fue el baño tradicional de la casa. A la par, la habitación I, donde podemos apreciar características de un sanitario, todavía no había sido construida. La cocina propiamente dicha se encontraba aislada del resto de las habitaciones, en la esquina sureste del patio (habitación XV), lugar donde los niños tampoco tenían acceso salvo cuando debían ir para pelar choclos para hacer la tradicional humita.

 

Los niños que visitaban asiduamente la casa tenían su propia habitación (III) para descansar. Era la más grande, había varias camas y ahí hacían dormir a los más pequeños junto a una nana. Existían otros cuartos de descanso también, entre ellas, la número VIII era el dormitorio de Domitila, y la IV, la habitación de Julio Figueroa.

 

Hacia el fondo de la casa, en la pieza que colindaba con la entrada sur al sótano, se encontraba el taller. Colmado de herramientas y maquinas, era lógicamente otro de los lugares prohibidos para los niños. A pesar de estas restricciones, Hebe asume, no sin nostalgia, que realmente disfrutaba plenamente  toda la casa.

 

 

Hombres de trabajo

 

Según relato oral de la familia, a partir de 1884, año en que Wilfrido Figueroa compra la finca, casi toda la población de La Merced y alrededores, trabajaba para él. El sistema de trabajo lo había implementado el mismo Wilfrido, y consistía en dividir la estancia en diferentes potreros, cada uno con su nombre: el potrero del alambre, del tabique, de la falda, de las acacias o el potrero de los galpones, aparte de los mencionados existían más de una veintena, y cada uno tenia una extensión aproximada de 30 a 40 hectáreas. En estas extensiones de tierra, vivían los arrenderos que, en palabras de Hebe

 

cada uno de ellos tenia su casita, un ranchito prolijo, se les exigía que tengan plantas, jardines, se le daba semillas, y en esos ranchitos, vivía él con su familia, y los ranchitos eran bien agradables, no eran ranchos muy abandonados, sino eran blanqueados, siempre había un fogón.

 

Según el esquema de trabajo esbozado, era el dueño de la estancia quien nombraba un encargado, quien, a su vez, dirigía a los diferentes capataces de los distintos potreros. Como ya se mencionó, en los años 40 del siglo pasado, según recuerdos vividos por Hebe, el encargado se llamaba Ramón Rosa Amador, quien era el único que vivía en la casa principal, siendo su esposa “Barbarita”, el ama de llaves y una de las hijas de la pareja, de nombre “Olga”, era quien se encargaba de cuidar a los niños.

 

Desde la casona se impartían las consignas de trabajo, y como se dijo, era el encargado el responsable de verificar que se cumplan. Los potreros se dividían en dos grandes tareas, la agrícola por un lado y la ganadera por otro. A pesar de la época, Wilfrido tuvo la posibilidad de mantener contacto en diferentes partes de país, tanto asesorándose con  algunas asociaciones rurales de Buenos Aires, o realizando sus compras en la empresa cordobesa Agrocor S. A., estos adelantos, excepcionales para la época, le permitieron, estar a la vanguardia de los últimos progresos tecnológicos, fue de esta manera, que mantuvo sus campos con una gran sustentabilidad agrícola-ganadera, implementando novedosas técnicas de rotación de cultivos y ganado.

 

En cuanto a los cultivos más importantes, se priorizaba el del tabaco, junto con el maíz y la alfalfa, y en menor medida, trigo, zapallo, papa, pimiento, cebolla, y diferentes tipos de hortalizas. Todo lo cosechado llegaba a la casa, lugar donde el encargado lo receptaba y guardaba, tanto en el sótano como en la habitación XI.

 

Muchos de los productos agrícolas eran vendidos a los mercados de Catamarca y Tucumán, pero fue la ganadería lo que marcó la diferencia. Para un personaje como Wilfrido Figueroa con una mirada tan avanzada para la época, los comercios regionales no eran suficientes, es por ello que, una vez asentado con firmeza en la gran estancia de la Villa de La Merced, decide emprender viajes a Puerto Calderas, en Chile. Como es de imaginar, una travesía a lomo de mula que demoraba varios meses, cruzando la sierra de la Graciana, pasando por el valle del Río de los Puestos, hasta subir la cumbre del Ambato, y cruzar el salar del Pipanaco, atravesando a Chile por lo que hoy en día se conoce como Paso de San Francisco.

 

Como todo puerto, las posibilidades económicas que allí se presentaban salvaban todas las dificultades del viaje antes descripto. Siempre había ofertas de compra, el ganado era vendido y parte de ese dinero era destinado a la compra de muebles y objetos de valor que traían los barcos europeos que llegaban a puerto.

 

Si somos capaces de imaginar las personas detrás de esta gran estancia, podemos también pensar en la empresa que la familia Figueroa supo levantar. Fue la mecánica de la producción campesina, sumado a los engranajes del comercio local a cargo de la familia Savio Piva y la buena relación comercial y parental[20] que ellos tuvieron, lo que logró un aceitado negocio entre las partes.

 

Decimos esto pues, el sistema de pago de las mensualidades de aquella época consistía, en una suerte de arreglo entre los interesados, en donde, de una u otra manera eran siempre los peones los que siempre salían perdiendo. Al llegar con las cosechas, cada persona tenía en mano una libreta, lugar en donde se anotaban sus compras, siendo el local de ramos generales de los Savio Piva, el único lugar donde poder hacerlo. Hebe nos cuenta con especial detalle estos momentos, recordando aun el sonido de la campana colgada en un gran algarrobo detrás de la casa, ya que:

 

en las épocas que se hacían cosechas, que se hacían trabajos con el maíz o por ejemplo con el tabaco, en la casa de la bisabuela había un lugar donde había un árbol muy grande un algarrobo, nose si todavía esta pero yo lo conocí, era donde había una campana grande de donde se hacían los llamados a los arrenderos cuando se hacia esas comidas, se les pagaba o se les hacia rendir cuenta, entonces ellos ya sabían, que se los llamaba con eso, para semejantes distancias que había, y en la casa de mi bisabuela, se recibía las cosechas y desde ahí también se retiraba cuando, se vendía.

 

Para finalizar, Hebe insiste en demostrarnos el autoridad de la familia, la magnificencia de la casa y la simpleza de sus moradores, al preguntar por el trato con los habitantes y empleados, es categórica al afirmar:

 

con la gente de La Merced, era un trato cotidiano y muy saludable, siempre la gente entraba a la casa con mucha familiaridad, teniendo sus lugares para estar, eran recibidos con mucho afecto, con mucho cariño, y nos enseñaban a nosotros a quererlos mucho a toda la gente que trabajaba en la finca, por que le decíamos finca, íbamos a las casas de ellos invitados a tomar mate cocido, la tacita a la orilla del fuego, nos servían las tortillas al rescoldo, de esa misma sociabilidad había, no había una distinción de clase, sino era como que todos éramos de la misma familia, sabíamos que habían encargados de la finca, que traían las cosechas, y sus familias eran muy queridas por nosotros y a su vez a nosotros también los queríamos mucho a todos los miembros de las distintas casas.

 

 

Vivencias en la casa

 

En torno a la casona, se han entretejido a lo largo del tiempo innumerables anécdotas y recuerdos de la gente de la villa de La Merced. Sin embargo, hasta ahora, pocos datos se tenían acerca de las vivencias familiares de sus habitantes.

 

Para la bisnieta de Wilfrido Figueroa, la casona trae consigo innumerables recuerdos de su niñez, la cual transcurrió en gran parte en este lugar.

 

A través de sus relatos podemos imaginarnos una casa llena de vida y de gente, en pocas palabras, la casa en su esplendor.

 

Pareciera que la vida de campo en aquellos tiempos era muy dura y sacrificada, pero en la casona de los Figueroa seguramente había espacio para el descanso. Pavos reales y faisanes rondaban la casa, animales de corral, gallinas, pavos, patos, y todo tipo de animales domésticos daban vida a los grandes patios. Las imponentes galerías estaban adornadas con jaulas con pájaros, que con su canto matutino despertaban a la casa.

 

Dado que los habitantes eran personajes reconocidos e importantes en la vida social de la época, como hemos dicho anteriormente, era muy común que se recibieran visitas constantes.

 

Con mucho cariño Hebe nos relató las rutinas de la antigua casona, vistas desde la perspectiva de una niña, ya que fue su infancia la que transcurrió en este lugar. Ella y su familia visitaban la casa en los veranos y algunos fines de semana durante épocas escolares, ya que ella y sus hermanos concurrían al colegio en la capital catamarqueña.

 

Los niños (primos de Hebe), estaban la mayor parte del tiempo a cargo de una nana, que los cuidaba y controlaba, “ella era como una hermana nuestra, como una hermana mayor que nos cuidaba bastante”.

 

El día de los niños transcurría entre el campo, viendo los animales o simplemente caminando, y la casa, o yendo al estanque, que estaba detrás del hospital, para bañarse.

 

La casa siempre era muy concurrida, tanto por las visitas que se recibía como por la cantidad de gente que trabajaba en ella o en el campo. Siempre había seis ó siete personas que se encargaban de la limpieza, la cocina y otras actividades.

 

Los arrenderos, que siempre iban y venían, tenían su acceso por la puerta trasera, de doble entrada, por donde todas las mañanas temprano entraban con lo lácteos, que venía de la lechería.

 

 

El familiar, la dama del vestido blanco y el jardín de las armas

 

Como casi todas las grandes construcciones, la casa de los Figueroa está envuelta en leyendas y personajes míticos que se esconden detrás de sus paredes. En un trabajo anterior dimos cuenta de la existencia de una historia sobre un ser de aspecto monstruoso que habitaba en el sótano de la casa y que debía ser alimentado con personas vivas. Según cuentan los pobladores de la zona, quienes se refieren a él como “un familiar”, esta habría sido la condición impuesta por el demonio para que los Figueroa puedan mantener sus riquezas. Esta historia mantiene numerosas similitudes con el mito de “El Familiar”, engendro maléfico al servicio de los dueños de grandes fundos agrícolas e ingenios cañeros[21]. Por ello, podemos afirmar que, en líneas generales, bien podría ser una resignificación de esta leyenda característica de gran parte del Noroeste argentino.

 

A través de la entrevista realizada, pudimos conocer otra de las historias que encierra esta casa. Nada mejor que dejar que Hebe nos cuente con sus palabras acerca de ello:

 

esta leyenda que huele a modernidad digo yo, porque cuando nosotros íbamos a la casa no había esa historia, pero después, dice la gente que cuando la casa fue abandonada de noche la gente veía una señora que se paseaba con una vela por las habitaciones, que se veía a través de las ventanas. Una historia de campo que muchos dicen que era el alma de mi bisabuela, que paseaba en la casa por la noche con una vela iluminada, vestida de blanco con el cabello largo, es una casa que estuvo muchísimos años abandonada y nunca entraba la gente, no entraba.

 

Pero hay otras historias que parecen poseer menos elementos fantásticos o, por lo menos, mayor  veracidad. La más intrigante es aquella que relata la existencia de una gran cantidad de armas enterradas en el jardín de la casa. Según el relato de Hebe:

 

hay una versión de que acá (en el jardín) se enterraron las armas de una contienda que hubo, esto si me dio mi tío la información…cuando al gobernador, que en ese momento era gobernador Rivera creo, nose en que época fue porque yo no lo tengo registrado bien, me dijo que Flavio Castellanos lo iba a matar al gobernador Ribera. Entonces los Figueroa, que estaban de parte de Ribera, juntaron a todos los empleados del campo, los armó y se vinieron hacia La Bajada para apoyarlo a Ribera. Cuando llegan a La bajada en el Portezuelo, Flavio Castellano lo había hecho matar a Ribera. Entonces regresaron inmediatamente y, comenta el tío y yo ya lo sabia, en el jardín donde esta el aljibe, ahí se habrían enterrado las armas.

 

Es bueno hacer un paréntesis y decir, si bien el relato puede ser verdad, no lo son los personajes que en el figuran, puesto que nunca existió un Gobernador de apellido Ribera, pero la persona que si ostentaba ese cargo, era en cambio, Flavio Castellanos quien asumió dicho cargo el 11 de junio de 1897. Decimos que lo contado por nuestra entrevistada tiene cierta veracidad ya que

 

el profesor Castellanos no pudo concluir su mandato, por que el partido de oposición llamado “La Unión Provincial”, le hizo una revolución el 22 de septiembre de 1899 que aunque fracasó y costó muchas victimas a ambas facciones, provocó una intervención federal que declaró caducos todos los poderes. Vino como interventor el doctor Benjamín Figueroa[22].

 

 

Algunos recuerdos de mis bisabuelos

 

Los recuerdos que Hebe tiene de sus bisabuelos, no son muchos, ya que Wilfrido murió antes que ella naciera.

 

Para Hebe su bisabuelo era

 

un hombre sagaz y visionario,…tenía gran capacidad para organizar y administrar una extensión tan grande de tierras, diseñó el campo determinando sectores de cultivo y pastoreo, por que él lo diseñó, era un campo, una finca, que un poco estaba así desperdigada,…asignó tareas a personal que se responsabilizaba de las actividades.

 

Según los relatos, era un gran conocedor de cómo hacer prosperar su ganado y todo lo que tenía que ver con las tareas rurales.

 

De su bisabuela, Domitila, también tiene pocos recuerdos ya que falleció cuando su ella era muy pequeña, pero lo que sí asegura que era una mujer de carácter, ya que al morir su esposo, se hizo cargo completamente de la administración de la finca y de todos los asuntos relacionados, con gran entereza y determinación.

 

En torno a la muerte de Wilfrido Figueroa, se han tenido diferentes versiones, muchas de ellas relacionadas con creencias y comentarios de los que no se conoce su origen.

 

Claramente sólo se sabe que murió volviendo del pueblo de Balcosna,  más precisamente en la Tierra Verde.

 

Según versiones orales recopiladas por la señora Correa de Gómez, cuando lo encontraron, “quedó una lata de sardina abierta como si había comido”, las sospechas que rondan en torno a su muerte se basan en que él gozaba de buena salud, y nunca hubo ningún tipo de síntoma que estuviera enfermo. Estas dudas y sospechas encuentran asidero en una versión que circuló en la época acerca de conflictos territoriales.

 

Sucede de que unos días antes había comprado 7000 rollos de alambre a la firma Agrocor, (...) para alambrar, separar toda la parte norte de la finca y alambrarla, desde los cerros todo eso hasta el bajo, por que estaba sin alambrarse, había intrusos que iban entrando, tenia una gran preocupación el por delimitar esa parte, no estaba delimitada y tenia avances parece de gente, entonces la sospecha está en eso, de que justo ya llegaban los alambres y justo él muere, mi tío sospecha que fue envenenado.

 

 

El juicio

 

A pesar de tantos recuerdos lindos, Hebe nos cuenta con cierta vergüenza una de las maniobras que desencadenó un importante desmembramiento familiar y el principio del fin de toda la finca.

 

El personaje principal de esta historia es Julio Figueroa. Fue el menor de 6 hijos que tuvieron Wilfrido y Domitila, estudió abogacía en Buenos Aires, lugar donde logró hacer los suficientes contactos con diferentes funcionarios públicos, lo que permitió emprender una exitosa carrera política. Fue Senador Nacional por Paclín y Vice-Gobernador en la formula con Girardi (1928-1930).

 

Con la excusa de no perder detalles de lo contado, decidimos poner el relato tal cual lo cuanta Hebe:

 

el tío Julio era un hombre un poco soberbio, nació muy mimado y con mucha riqueza, acostumbrado a tener mucho dinero y fue a Buenos Aires y allí estuvo abierto a muchas puertas por que había muchos funcionarios públicos que eran familiares, estaba muy vinculado política y socialmente, pero por una cuestión familiar y allá en Buenos Aires se ve que era vivo y se conectó bastante… entonces parece que la convenció en el lecho de muerte a mi bisabuela de que hicieran una venta de toda la estancia por que no se podía administrar por que los gastos eran muy grandes las cuentas la superaban, según cuentan la historia familiar, y mi bisabuela en su lecho de muerte le firmó en su lecho de muerte una venta simulada al doctor Acuña, cuñado de Julio, que actualmente hay familia directa de ella, y cuando muere mi bisabuela, había sido una vende simulada, este doctor Acuña al Tío Julio le entrega el campo, le vende al Tío Julio toda la finca y queda desheredados todos los otros.

 

Este episodio acaecido en los años 30, tuvo como desencadenante un juicio realizado por el único menor de la familia, Jorge Vizozo, estudiante de abogacía y Licenciado en Historia, se retiró como jefe de policía de Catamarca. El juicio por él comenzado llevó más de dos décadas dejando en serios problemas económicos al querellante, hasta que un día, Julio cansado de audiencias judiciales y Jorge acorralado por las deudas deciden hacer un acuerdo. Hasta el día de hoy no puedo saber bien yo cómo ha sido el arreglo, dice Hebe, pero lo cierto es que Julio Figueroa se retira del juicio. Por su parte Julio, se queda con la casa y una importante porción de la estancia, dejando al Sr. Vizozo con la parte Este de la finca.

 

El final de dicho juicio, dejó marcas irreparables en la familia. Con tristeza Hebe nos comenta como todo había dejado de ser lo mismo, ya que nunca más volverían a la casa.

 

Cuando la estancia empieza a decaer y la familia a dejar de ir, Julio nombra a algunos integrantes de la familia Salazar como los nuevos capataces, y al cabo de pocas décadas se produce un abandono progresivo y total.

 

 

Comentarios finales

 

El objetivo del presente trabajo fue destacar el simbolismo que expresa a través de su morfología y sus características arquitectónicas; así también como los distintos usos que se le dio a la casona de Wilfrido Figueroa. Y a través de nuestra hipótesis sobre la construcción de la identidad de esta localidad.

 

Ayudados en gran parte por los relatos familiares, pero complementados también con información histórica de diverso carácter, a lo largo de este trabajo, hemos intentado reflejar cómo una construcción, en este caso sumamente particular, ha marcado la vida de muchas personas, donde generaron   mecanismos que a través de los cuales el conocimiento local opera, incluyendo el aspecto de si “conocimiento local” es, en sí, una etiqueta apropiada para los mecanismos cognitivos y experimentales que están en juego en las relaciones de la gente con su entorno, formando un proceso identitario tanto de la Villa de la Merced, como de sus propios habitantes. Puesto que, compartimos la idea de conocimiento local que toma Escobar[23] de otro autores, donde lo tratan como “una actividad práctica, situada, constituida por una historia de prácticas pasadas y cambiantes”, es decir, al asumir que el conocimiento local funciona más a través de un conjunto de prácticas que dependiendo de un sistema formal de conocimientos compartidos, libres de contexto[24] tomado de Escobar[25]. Por lo cual esta postura nos acerca a la percepción donde los pobladores están arraigados e inmersos en su localidad.

 

Nuestro estudio  nos permitió examinar la medida en la que los pobladores de La Merced generan marcos de referencia construidos desde su percepción local, y ello nos permite visualizar las maneras presentes o potenciales de re-concebir y reconstruir su mundo, plasmado en prácticas y visiones múltiples, basadas en el lugar, en una casa. De manera que se erigen como formas “alternativas” de organizar la vida social, de los pobladores actuales. Donde los recuerdos, la historia y el presente se mezclan y sus límites se difuminan cuando pensamos en la casona de Wilfrido Figueroa.

 

 

Ingresó: 14 de julio de 2011

Aceptado: 6 de noviembre de 2011

 

     

 

 

Historia de una casa con historias: memorias de la Familia Figueroa. Departamento de Paclín,  Catamarca

 

 

Resumen

 

Existe una indisoluble relación entre la creación del Departamento Paclín en la Provincia de Catamarca, la Villa de La Merced y la familia Figueroa. Este trabajo tiene como finalidad dar a conocer parte de esos vínculos y relaciones, contextualizados dentro de la imponente casa que albergó a dicha familia, siendo sus dueños Wilfrido Figueroa y Domitila Tapia. Fue en esta casa donde se tomaron no solo  algunas de las decisiones que marcarían el rumbo del Departamento, sino también, lugar de las vivencias familiares típicas de finales del siglo XIX y principios del XX. Mediante un exhaustivo análisis bibliográfico y una entrevista no estructurada a una de las bisnietas del dueño, pretendemos acercarnos a parte de la historia reciente del Departamento.

Palabras Clave: Paclín, Historia, Casa, Genealogía, Figueroa.

 

Emilio Alejandro Villafañez

Ezequiel Fonseca

 

 

Story of a House with Stories: the Figueroa Family Memories. Paclin Department, Catamarca

 

 

Abstract

 

There is an indissoluble connection between the creation of the Paclín Department in the Catamarca Province, the Villa de La Merced and Figueroa family. This paper aims to present these connections and relationships, contextualised within the imposing house where this family lived, being their owners Wilfrido Figueroa and Domitilla Tapia. It was in this house where they took not only some of the decisions that marked the course of the Department, but also, a place of the typical family experiences of the late nineteenth and early twentieth centuries. Through a comprehensive literature review and an unstructured interview with one of the great grand-daughters of the owner, we intend to present part of the Department's recent history.

Keywords: Paclín, Story, House, Genealogy, Figueroa.

 

 

Emilio Alejandro Villafañez

Ezequiel Fonseca

 

 



* Lic. en Arqueología, Becario Doctoral Tipo II CONICET, Doctorando en Antropología, Universidad Nacional de Córdoba; docente ayudante de primera en la catedra Ergología y Tecnología, Escuela de Arqueología, Universidad Nacional de Catamarca.

** Lic. en Arqueología, Doctorando en Historia, Universidad Nacional de Córdoba; docente JTP en las cátedras de Prehistoria y Arqueología c/ extensión Antropología, Facultad de Humanidades, Universidad Nacional de Catamarca.

[1] Ingold, T., ““Foreword”, en Dobres, Marcia- Anne y Hoffman, Christopher R., The Social Dynamics of Technology. Practice, Politics and World Views, Smithsonian Institution Press, Washington and London, 1999.

[2] Escobar, A., “El lugar de la naturaleza y la naturaleza del lugar: ¿globalización o postdesarrollo?”, en Lander, Edgardo, La colonialidad del saber: eurocentrismo y ciencias sociales. Perspectivas latinoamericanas, Clacso-Unesco, Buenos Aires, 2000, pp. 113-143.

[3] Vera, J., “El Concepto de Mercedes y Encomiendas los primeros colonos de Catamarca durante el siglo XVI”, Boletín de la Junta de Estudios Históricos de Catamarca, año VII Nº 1 y 2, Catamarca, 1955.

[4] Brizuela del Moral, G., Historia de las mercedes de tierra en Catamarca. Siglos. XVII al XIX, Ed. Benedit, Catamarca, 2003, pp. 66-69.

[5] Vera, J., 2004, ob.cit.

[6] Larrouy, P., “Los Indios del Valle de Catamarca”, en Estudios Históricos de la Revista de la UBA, tomo XXVII”. Ed. Coni hermanos, Buenos Aires, 1914.

Guzmán, G., Colegio Ntra. Sra. del Huerto de Catamarca. Libro de oro en el 1er Centenario de su fundación 1874-1974, Comisión de Homenaje Catamarca, Catamarca, 1974.

[7] Legislatura de la Provincia de Catamarca, Ley provincial N° 277.

[8] Coronel, M., “La Merced, Departamento Paclín: su historia”, en III Tercer Congreso de Historia de Catamarca, Editorial científica universitaria, 2006, p. 179.

[9] Coronel, M., 2006, ob.cit., p. 179.

[10] Archivo Histórico de Catamarca (en adelante AHC), Carpeta Nº 9, Sucesorio, 1919.

[11] AHC, Caja Nº 168, paquete Nº 17, Sucesorio 1919.

[12] Flores A., Libro histórico de la Villa de La Merced, Escuela 292, Tucumán, s/f., inédito.

[13] Esta descripción fue realizada sobre la base del estudio técnico hecho por  la Dirección de Patrimonio Cultural, Departamento de gestión de patrimonio arquitectónico urbanístico de la Provincia de Catamarca.

[14] Meyer E. y Olivera de Bonfil A., “La historia oral. Origen, metodología, desarrollo y perspectivas”, en Historia Mexicana, Vol. 21, N° 2, México, 1971, p. 372.

[15] De Garay, G., “La entrevista de historia oral: ¿monólogo o conversación?”, en Revista Electrónica de Investigación Educativa, 1 (1), 1999, [en línea] http://redie.uabc.mx/vol1no1/contenido-garay.html. [Consulta: 14/07/2011].

[16] Mateo, E., “La recuperación de la memoria: la historia oral” [en línea], en TK, Nº 16, Asociación Navarra de Bibliotecarios, España, 2004, pp. 123-144, [online] http://www.asnabi.com/TK_archivos/TK_17/35mangado.pdf#search=%22funcionarios%20y%20escribas%22 [Consulta: 14/07/2011].

[17] Guber R., EL salvaje metropolitano. Reconstrucción del conocimiento social en el trabajo de campo, Paidos, 2004, p. 203.

[18] Guber, R., 2004, ob.cit.

[19] Ingold, T., 1999, ob.cit.

[20] Existía una relación de parentesco entre las familias, ya que Arturo Savio (empresario hotelero en la zona), se había casado con una prima hermana de Domitila Tapia.

[21] Cejas, O., Del Tukma mágico, Ediciones del Rectorado, Universidad Nacional de Tucumán, Tucumán, 2001.

[22] Olmos R., Historia de Catamarca, Ed. La Unión, Catamarca, 1957, p. 237.

[23] Escobar, A., 2000, ob.cit.

[24] Ingold T., “The Temporality of the Landscape”, en World Archaeology, N° 25, Reino Unido, 1993, pp. 152-174.

[25] Escobar, A., 2000, ob.cit., p. 121.