ESTUDIO HISTÓRICO CONSTRUCTIVO. UNA APROXIMACIÓN AL DIAGNÓSTICO Y CONSERVACIÓN DE LA IGLESIA FUNDACIONAL DE LULES (TUCUMÁN).

 

 

HISTORICAL CONSTRUCTION STUDY. AN APPROACH TO THE DIAGNOSIS AND CONSERVATION OF THE FOUNDATIONAL CHURCH OF LULES (TUCUMÁN).

 

 

María Soledad Gianfrancisco

Instituto Superior de Estudios Sociales (ISES)

Consejo Nacional de Investigaciones Científicas y Técnicas (CONICET) y Universidad Nacional de Tucumán (UNT). Argentina

solegianfrancisco22@gmail.com

https://orcid.org/0000-0001-8366-773X

 

 

 

Fecha de ingreso: 13/04/2024

Fecha de aceptación: 28/03/2025 

 

 

Resumen

 

La Provincia de Tucumán cuenta con una importante cantidad de edificios históricos que representan una valiosa herencia histórica y cultural. Entre ellos, se destaca la iglesia Fundacional de Lules, un pequeño conjunto arquitectónico compuesto por la iglesia y casa parroquial.

Fundado por el cura Zoilo Domínguez en 1851 es clausurado por la arquidiócesis de Tucumán en 1930. En 1986 reabrió sus puertas y el Municipio dedicó un gran esfuerzo para la restauración de la iglesia. Sin embargo, la casa parroquial continuó abandonada y en franco deterioro.

Teniendo en cuenta en valor histórico, cultural y patrimonial que posee este edificio llevamos a cabo la primera etapa en el proyecto de restauración que involucró la interpretación de los procesos constructivos y destructivos, diagnóstico de las patologías que presenta y una propuesta de soluciones constructivas, en miras a la recuperación y puesta en valor.  

Palabras Claves: restauración, Lules, arqueología histórica, iglesia fundacional, Zoilo Domínguez

 

 

Abstract

 

The Province of Tucumán has a significant number of historic buildings that represent a valuable historical and cultural heritage. Among them, the Foundational Church of Lules stands out, a small architectural complex composed of the church and parish house.

Founded by the priest Zoilo Domínguez in 1851, it was closed by the Archdiocese of Tucumán in 1930. In 1986, it reopened its doors and the Municipality dedicated a great effort to the restoration of the church. However, the parish house remained abandoned and in a state of serious deterioration.

Taking into account the historical, cultural and heritage value of this building, we carried out the first stage of the restoration project, which involved the interpretation of the construction and destructive processes, diagnosis of the pathologies it presents and a proposal for construction solutions, with a view to its recovery and enhancement.

Keywords: restoration, Lules - historical archaeology - founding church - Zoilo Domínguez.

 

 

Introducción

 

La conservación de la cultura de la ciudad es fundamental para mantener viva su historia, su identidad, memoria y el sentimiento de pertenencia de su comunidad. Es por ello que creemos que la implementación de estrategias y políticas dirigidas a restaurar y poner en valor el mismo, permite rescatar su historia y compartir ese conocimiento con la sociedad.

La importancia que se le asignó a la restauración de los edificios históricos y a su integración en los nuevos planteos urbanísticos, nos reclama obtener un nivel de información histórica y técnica que solo es posible a partir de la implementación de herramientas de la arqueología y del relevamiento arquitectónico como métodos indispensables para llegar a comprender los edificios (Páez, 2002; Muñoz y Tabales Rodríguez, 2010).

En este sentido, resulta vital que, en las intervenciones sobre el patrimonio histórico y arquitectónico realicemos una lectura del edificio como un documento, ya que es el único modo de comprenderlo y no perder su riqueza informativa. En este contexto, la documentación, es reivindicada como primera fase en la restauración, tomando así su específico sentido crítico y científico: no se trata —sólo— de dibujar la arquitectura, imaginada o real, corno una manera de conservar para el futuro la memoria anterior a su transformación; sino de leer en el documento construido la información que nos viene del pasado, para poder comprender su verdadero sentido y valores (Caballero Zoreda y Latorre González Moro, 1995).

Partiendo de esta premisa, presentamos los trabajos realizados en la Iglesia Fundacional y la casa parroquial de la ciudad de San Isidro de Lules, situada a 30 Km de San Miguel de Tucumán). La iglesia fue construida en 1851 por el presbítero Zoilo Domínguez. Es el primer edificio público de la ciudad y fue declarada Monumento Histórico Provincial en 1997.  En el año 1930 la iglesia es clausurada y todo el conjunto arquitectónico permanece cerrado hasta 1986. Luego de su reapertura, el municipio lleva a cabo trabajos de restauración sólo en la iglesia y fachada exterior de la vivienda.

Teniendo en cuenta en valor histórico, cultural y patrimonial que posee este edificio planteamos una serie de estudios generales que involucraron 1) interpretación de los procesos constructivos y destructivos del conjunto arquitectónico, 2) identificación y análisis de las patologías, y 3) propuesta de soluciones constructivas, en miras a la recuperación y puesta en valor.

 

 

Metodología

Seguiremos la propuesta metodológica de Acale Sánchez (2016), partiendo de la premisa de que la investigación histórica involucra la conjunción entre el análisis de las fuentes documentales y el estudio descriptivo del edificio desde todas las perspectivas posibles. Desde esta perspectiva, el objetivo último es delimitar las etapas constructivas del edificio a través de una cronología en la que se recojan los momentos fundamentales de su evolución. A través de ellos podremos situar al edificio en su contexto urbano y conocer cómo ha evolucionado tipológicamente a lo largo del tiempo, obteniendo información específica sobre su construcción y su transformación a lo largo de su historia.

Incorporaremos el diagnóstico de patologías del edificio histórico y en su contextualización en la secuencia histórico-constructiva, de modo que se entiendan las transformaciones del mismo, no sólo desde su uso y la funcionalidad, sino también desde la óptica de su repercusión en la estructura y en los procesos patológicos que sufrió a lo largo de su historia.

Llevamos a cabo el estudio y diagnóstico mediante un exhaustivo recorrido del mismo con el objetivo de determinar su estado de conservación/alteración, y agrupamiento de las diferentes patologías identificadas de acuerdo al agente causante.  Realizamos el relevamiento de la estructura por medio de ensayos no destructivos. A partir del relevamiento de daños y del estudio de las características de fundación y del terreno efectuamos el diagnóstico correspondiente.

Consideramos que esta información será muy importante a la hora de elaborar directrices para la conservación y restauración, permitiéndonos decidir, por un lado, si es necesario o no detener los procesos patológicos (en función de la evaluación de los riesgos existentes) y, por otro, establecer unas intervenciones más focalizadas y ajustadas a las necesidades reales del tratamiento de dichos procesos patológicos.

Fundamentamos las conclusiones elaboradas en el análisis documental (análisis de documentos históricos, informes editos e inéditos), entrevistas a referentes locales, descendientes familia Domínguez – Cantón, y nuestro trabajo en terreno, descrito anteriormente. El registro de fotografías, dibujos y pinturas fue sumamente importante para la reconstrucción del sector de la vivienda que fue derrumbado, ya que no existen registros escritos que detalle este evento.

A continuación, detallamos actividades realizadas, resultados y planteo de hipótesis.

1.   Estudios históricos y documentales de la historia constructiva del conjunto arquitectónico y de la familia Domínguez.

2.   Estudios previos de la edificación.

3.   Identificación de locales y muros, estudio de sistemas constructivos, determinación de tipologías de muros.

4.   Relevamiento planimétrico: plano de planta y de secciones que exhiben datos y vistas para tener una completa imagen visual de toda la edificación existente.

5.   Estudios estratigráficos, constatación de los principales eventos estructurales.

6.   Caracterización espacial y funcional de cada fase constructiva del edificio

7.   Comprensión diacrónica del proceso evolutivo del inmueble

8.   Diagnóstico de patologías. Estos problemas se manifiestan de muchas formas y se suelen clasificar en función de su agente causante. Por su origen se clasifican en lesiones físicas, mecánicas y químicas.

9.   Entrevista a integrantes de la familia Domínguez y referentes de Lules.

10.            Propuesta de intervención

 

La iglesia fundacional de San Isidro de Lules: antecedentes de intervención

 

La ciudad de San Isidro de Lules es la localidad cabecera del departamento homónimo, en la provincia de Tucumán (Argentina) (Figura 1). La Iglesia Fundacional y su casa parroquial forman parte del patrimonio arquitectónico de la misma y constituyen un bien de enorme valor histórico, material y simbólico (Figura 2).

La Iglesia Fundacional de San Isidro de Lules es el primer edificio público de la ciudad. Fue construida en 1851 por el presbítero Zoilo Domínguez. Tras su muerte es ocupada por su familia, siendo su último ocupante el benemérito Dr. Eliseo Cantón, sobrino del fundador. En 1931 la iglesia es clausurada y su reapertura se produce seis décadas después, en el año 1986. A partir de ese momento, en diversas instancias el municipio efectuó intervenciones en la iglesia que mitigaron, en parte, el daño que presentaba la misma.

En el año 2003, el municipio encara un proyecto, a cargo de la Arquitecta Beatriz Silva y Norberto Antonio Palacios (Silva y Palacios, 2003), que involucra trabajos de restauración en el interior y fachada de la iglesia, y fachada de vivienda de la familia Domínguez – Cantón. El interior de la vivienda no fue considerado en el proyecto y seguiría abandonada.

Posteriormente, durante el período 2019 – 2023 se efectuaron nuevamente obras de reparación en el interior y fachada de la Iglesia, y fachada de la vivienda, dejando nuevamente de lado el resto del edificio. La iglesia siguió siendo utilizada como edificio religioso, pero, además, se convirtió en un espacio de exposiciones temporales que priorizó la difusión y conocimiento de la obra del cura Zoilo Domínguez a través de múltiples actividades de transferencia y esparcimiento a cargo del municipio.

 

 

Figura 1. Ubicación geográfica San Isidro de Lules.

Fuente: tomado de GADIM 2018 - Imágenes Google.
 
  Figura 2. Vista fachada Iglesia Fundacional y vivienda familia Domínguez

 

 

Fuente: Elaboración propia.

 

 

Resultados

 

 

Análisis documental

 

El trabajo previo de análisis de documental (archivo y bibliografía) nos permitió establecer ciertos eventos importantes en relación a la evolución constructiva del conjunto arquitectónico:

1- Fundación del conjunto arquitectónico: Zoilo Domínguez desempeñaba sus actividades como cura en Famaillá. En sus constantes viajes atravesaba el paraje de Lules. Atraído por la belleza natural del lugar, el 25 de septiembre de 1849 compró a Juan Segundo Zelada un terreno situado en la Banda Sud del río Lules que poseía 500 varas de frente por 500 varas de fondo[1].

 

 

Figura 3. Mapa Villa de San Isidro de Lules. Año1906.

 

 

Fuente: AHT, Sección Administrativa, Vol. 30, Tomo IV.

 

 

2- El día 20 de noviembre de 1851, Zoilo Domínguez realizó un pedido a las autoridades eclesiásticas para que otorguen la licencia correspondiente a fin de constituir un oratorio público en honor de San Isidro Labrador, utilizando sus propios bienes y comprometiéndose a sostenerlo con todos los requisitos que prescribe el rito[2]. La licencia se le concedió al día siguiente con la condición de que el oratorio tuviese la puerta hacia la parte pública y que no hubiese comunicación alguna, tránsito o ventana del oratorio a la casa. Además de ello, se le exigió que no se administraran los sacramentos sin la licencia expresa del párroco.

 

3- El cura Zoilo proyectó el plano de la ciudad. En la ejecución del proyecto participó el agrimensor Teodoro Carmona, quién se encargó de delinear el entramado urbano[3]. Se implantó el clásico modelo colonial de damero, con una plaza pública en el centro de la ciudad.  Hacia el oeste se proyectó la construcción de la vivienda del cura Domínguez.

 

4- Primero comenzó con la construcción de la casa parroquial que posteriormente se transforma en vivienda Familia Domínguez-Cantón-, y luego continuó con la construcción de la iglesia (Guerra Orozco, 2017). Sin embargo, Zoilo Domínguez no tuvo la satisfacción de bendecir su propia obra debido a las persecuciones políticas que vivieron él y su padre en el contexto del sangriento enfrentamiento entre federales y unitarios en la región. En ese momento su padre se desempeñaba como gobernador interino y fueron exiliados a Rosario de la Frontera. Posteriormente, el cura Zoilo se traslada a Santa María y muere en el año 1865 (Guerra Orozco, 2017), siendo su cuerpo es traslado en carreta hasta Tucumán y sepultado en la cripta familiar de la iglesia.

 

5- Al exiliarse Zoilo, la casa parroquial se ocupó por sus familiares. Luego de su muerte, su hermana Zoila Domínguez continúa con su obra. Se presenta ante el Vicario Foráneo en 24 de mayo de 1866 y pide, “…conceder permiso para la colocación de la citada capilla con el fin de que ésta sirva también de sepulcro de los deudos del fundador de ella…, ofreciendo todos los hermanos del difunto Dr. Domínguez sostener y conservar en buen estado y con todo lo necesario haciendo los reparos y las refacciones precisas a dicha Capilla...”[4]. En virtud de este escrito es que interpretamos que la obra de la iglesia fundacional aún no había finalizado en su totalidad.

 

6- Luego de la muerte de Zoila, continuó con su obra su hermana Isabel Josefa Domínguez Molina. Isabel se casa en 1860 con el músico Eliseo Cantón y se mudaron a la vivienda familiar junto a su marido y allí crían a sus hijos. Ambos fueron padres del célebre médico, político y catedrático Eliseo Cantón, último ocupante de la vivienda.

 

7- Eliseo Cantón murió en junio de 1931, dejando por escrito su deseo de ser cremado y de que sus cenizas sean depositadas bajo el jazmín que había plantado su madre en el jardín de la casa familiar. Debido a que Eliseo Cantón era un reconocido masón, el obispado de Tucumán hizo abandono de la iglesia y construyó un nuevo templo frente a la cara sur de la plaza, la “Nueva Parroquia de San Isidro”. Allí se llevó todo tipo los elementos y pertenencias de la Iglesia Fundacional. De este modo, la iglesia cerró sus puertas durante 65 años, hasta que se reabrió en 1986, cuando pasó a llamarse “Iglesia Vieja”[5].

La descripción que efectuamos da cuenta de que el edifico es el resultado de una serie de construcciones, destrucciones y transformaciones a lo largo de su historia. En virtud de ello, es que, para una comprensión global del conjunto arquitectónico creemos esencial abordar su análisis desde una visión evolutiva considerando su secuencia de transformaciones.

 

 

Análisis histórico-constructivo. Comprensión diacrónica del proceso evolutivo del inmueble

Realizamos el análisis arquitectónico y lectura de paramentos de manera parcial en virtud de los eventos descriptos anteriormente.

Etapa 0: se construyeron los cimientos del conjunto arquitectónico. Los mismos son de piedra que se dispusieron de manera regular formando un lienzo parejo. Por encima de la misma se elevó la estructura muraria de la vivienda de dos plantas compuesta por hileras de ladrillos de media vara (0.40 -0.42 m de soga x 0.20 m de tizón) de tierra de color naranja muy claro, asentados en un mortero de barro, revocados y terminados con un enlucido de cal. El aparejo utilizado fue de tipo inglés, formado por hiladas alternadas de sogas y tizones (Dies Cursi, 2003). El mortero utilizado fue de barro sin ningún otro tipo de aditamento.

En la planta baja, hacia la calle, se extendió una galería de cinco arcos rebajados. A cada habitación le correspondió una puerta-ventana que se abría hacia la galería. En la planta superior se dispuso un amplio balcón corrido rematado por barandas de hierro hacia el cual daban las habitaciones (Figura 4).

 

Figura 4. Fotografía del año 1895, Vista de iglesia Fundacional y casa familia Domínguez donde se pueden observar las dos plantas originales, el balcón corrido a la calle con acceso al coro de la capilla, y caballeriza

 

 

Fuente: La Gaceta del Sur, 19 abril 1991.

 

 

En el sector posterior de la vivienda el piso superior exhibió sólo una abertura que parece corresponder a una ventana por lo que inferimos que presentaba divisiones internas distintas a las de planta baja (Figura 5). Pero hasta el momento no hemos hallado información sobre ello. La planta baja presenta tres aberturas -con terminaciones sencillas sin molduras- que corresponden a puertas-ventanas de madera que dan hacia la galería con columnas cilíndricas que se unen en L a la iglesia (Figura 6 y 7).

 

 

Figura 5. Fotografía de 1895, Vista patio y sector posterior vivienda familia Domínguez

 

Fuente: La Gaceta del Sur, 19 abril 1991.

 

Hacia el norte, situada a 12 m de la vivienda se dispuso un sector para la caballeriza. El mismo correspondió a un espacio de habitación de 7 m de ancho y 14 m de largo aproximadamente, con puerta de madera de acceso que da hacia la calle y techo a una sola agua (Figura 4) A modo de hipótesis, consideramos que presentaba el mismo tipo de estructura muraria y cubierta que la iglesia.

 

Etapa 1: se continuó con la construcción de la iglesia fundacional. La estructura muraria era similar a la vivienda parroquial, hileras de ladrillos de media vara (0.40 -0.42 m de soga x 0.20 m de tizón) de tierra de color naranja muy claro asentados en un mortero de barro revocados y terminados con un enlucido de cal. El aparejo que se utilizó es de tipo inglés formado por hiladas alternadas de sogas y tizones (Dies Cursi, 2003). El mortero era de barro sin ningún otro tipo de aditamento.

La iglesia es de estilo colonial clásico. Posee una nave única, alta y angosta de 10 m de ancho por 21 m de largo. La nave central que mide 6,30 m de ancho por 17,5 m de largo. En el lado sur de la iglesia se abre una pequeña nave secundaria (4,10 m de ancho x 12,70 m de largo) que se continúa con la sacristía hacia el oeste y con el acceso al coro hacia el este. La circulación de un espacio a otro se realizó a través de columnas cuadradas sin basa y con un capitel compuesto por moldura muy simple de estuco que sostienen un arco abovedado de medio punto apoyado sobre impostas (Figura 5). En total, la nave posee cuatro columnas completas y cuatro medias columnas que se replican en espejo hacia el lado norte de la iglesia. Las mismas se encuentran adosadas al muro sobresaliendo sólo una sección de las ellas, como así también del arco (Figura 8). Las columnas que actúan como divisorias de espacios son de sección circular de 60 cm de diámetro, construidas con mampostería que sostiene un arco de medio punto.  El arco está compuesto por una serie de piezas denominadas dovelas de ladrillos de barro que trabajan a compresión (Huerta, 2004).

La entrada conserva un atrio que sirve como medio de comunicación con la escalera situada hacia el oeste de la misma y permite el acceso al coro ubicado en planta superior. El coro, situado en alto a los pies de la iglesia, se asoma a la nave mayor a través de balaustrada. La pared del fondo destaca por la existencia del arco serliano, de la fachada exterior, y un pequeño óculo de iluminación que se puede observar en la fachada principal. El acceso al coro se efectúa por una escalera lateral de madera.

El transepto corresponde a la zona previa al ábside y donde se ubica el crucero. Hacia el ala izquierda la habitación lateral que oficiaba de bautisterio. La entrada a la misma también está demarcada por dos columnas y arco de medio punto registrado en el mismo sector. A continuación, hacia el presbiterio se dispone la sacristía. En el presbiterio hay una pequeña cripta para sepultar familia Domínguez. Actualmente se hallan sepultados algunos de sus hermanos.

 

Figura 6. Vista interior iglesia fundacional
 

 

 

 

Fuente: Elaboración propia.

 

 

La planta de la iglesia y la vivienda parroquial forman una figura en L invertida que en el sector posterior poseen una galería con columnas que rodea el patio interno de la vivienda (Figura 6).

La misma posee 2,70 m de ancho y cuenta con cuatro columnas en la sección de la iglesia y cinco columnas en la sección de la vivienda, todas circulares, de 70 cm de diámetro elaborada en ladrillo de color naranja. Sistema de cubierta es a una sola agua con tejuelas y tejas perneras o musleras, típicas de la época.

Etapa II: construcción del patio interno. No poseemos datos de las dimensiones del mismo, pero según consta en fotografías posee una extensión similar a la actual, 8 m de ancho por 16 m de largo. El piso se confeccionó con ladrillos y se delimitó por un muro de ladrillos de media vara con una puerta de acceso demarcada por dos columnas circulares (construidas con ladrillos del mismo tipo que los descriptos para la galería) que demarcaba el acceso al jardín donde se encontraban árboles frutales. Los ladrillos del piso del patio eran de ladrillos de media vara, del mismo tipo que los utilizados para los muros de la vivienda y la iglesia (Figura 4 y 8).

 

 

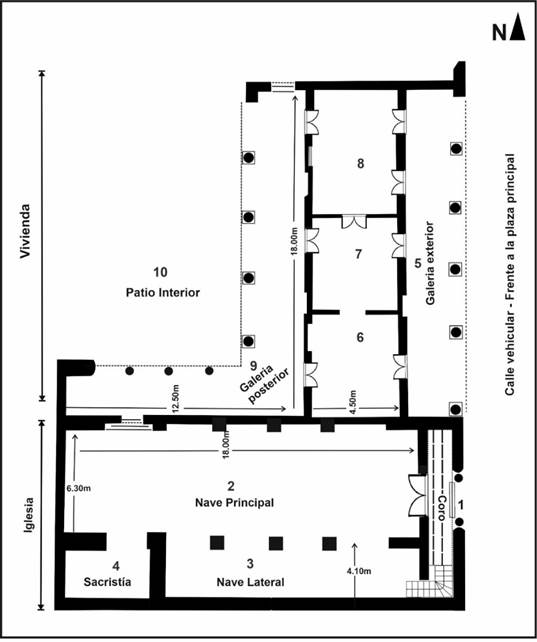
Figura 7. Plano de Planta Iglesia Fundacional y Vivienda Familia Domínguez Cantón.

 

 

Fuente: Elaboración propia sobre la base de Plano efectuado por Silva y Palacios (2003).

 

 

Etapa III: Derrumbe del piso superior de la vivienda. La reconstrucción de la vivienda se realizó sobre sus cimientos originales. Se reformó la misma entre fines de la década de 1910 y comienzos de década de 1920, según relatos entrevistas realizadas a familiares del Dr. Eliseo Cantón, sobrino de Zoilo Domínguez, último ocupante de la vivienda.

El estilo neoclásico que le imprimió a la remodelación reproduce algunas de las características principales del Partenón griego con sus columnas circulares acanaladas en la galería frontal y posterior (Silva y Palacios, 2003). La vivienda cuenta con tres salas. Las dos primeras poseen 5.5 m de largo por 4,5 m de ancho. La Habitación 1 posee una puerta-ventana situada en el muro oeste que da hacia el patio interno. La Habitación 2 posee dos puertas ventanas situadas en el muro este y oeste que dan hacia las galerías que dan hacia el interior y exterior de la vivienda. La última habitación es de mayor tamaño, posee 7 m de largo por 4.5 m de ancho y dos puertas-ventanas (como en las anteriores), pero a esta se suma una ventana. La galería posterior se une en ángulo con la casa definiendo un patio interior privado (Figura 7).

Figura 8. Vista interior vivienda
 

 

 

 

Fuente: Elaboración propia.

 

La estructura muraria está compuesta por hileras de ladrillos de ladrillos de 0,30 m (soga) x 0,15 m (tizón) de color naranja rojizo asentados en un mortero de barro revocados y terminados con un enlucido de cal coloreado con pigmentos naturales a modo decorativo. El aparejo utilizado es de tipo inglés, formado por hiladas alternadas de sogas y tizones. La cubierta presenta un maderamen o envigado de madera dura apoyado sobre muros portantes. Sobre el envigado se apoyan los cabios que sostienen las tejuelas (Figura 7 y 8).

 

Figura 9. Vista actual patio interno vivienda
 

 

 

 

Fuente: Elaboración propia.

 

 

Etapa IV: apertura de tumba para entierro de cenizas de Dr. Eliseo cantón en ángulo SO del patio interno. Cierre y abandono de la iglesia y vivienda familia Domínguez-Cantón en 1931.

Etapa V: década de 1970 ocupación ilegal del sector de jardín y patio interno que involucró la instalación de dos casillas de madera y uso del sector de sacristía de la iglesia.

Etapa VI: derrumbe del campanario en 1984.

Etapa VII en el año 1996 la iglesia reabrió sus puertas y poco después se llevó a cabo intervención en la iglesia fundacional que involucró la reparación de cubierta, restauración del retablo, revoque y pintura de paredes, reconstrucción de campanario y fachada. En el caso de la vivienda solamente se realizó la restauración de la fachada frontal, dejando en completo abandono el resto de la misma.

La reapertura de la iglesia quedó limitada en su actividad eclesiástica a ocasionales misas, bautismos y casamientos.

Actualmente, la iglesia se utiliza como museo y centro de actividades y muestras temporales. La vivienda familiar nunca vuelve a ser utilizada, se encuentra abandonada y en proceso de destrucción. El resto del terreno que pertenecía a la familia Domínguez Cantón fue usurpado y vendido.

 

 

Análisis de patologías

 

El análisis realizado nos permitió registrar toda una serie de grietas en los distintos elementos constructivos del edificio con la identificación clara del agente causante. No se observaron movimientos de inclinación y descenso de muros.

En primer lugar, registramos el crecimiento de raíces y plantas que provocan presiones mecánicas generando grietas y fisuras en distintos sectores de área exterior posterior de la vivienda y la iglesia. Los elementos más dañados corresponden 1) el arco de medio punto situado en la parte superior de la puerta de entrada de la sacristía. Esta grieta recorre todo el arco y se extiende hacia la parte inferior del muro, 2) Cornisa de la vivienda donde se produjeron desprendimientos de molduras y desplomes de muro por acción raíces.

Además, registramos daños en los materiales constructivos con origen no estructural (desprendimiento de revestimiento y erosiones superficiales intensas): 1) El problema principal que presenta es la humedad por filtración a través de la cubierta superior de la vivienda, ya sea total (chapa, entramado madera, vigas y tejuela) o parcial (tejuela), en el sector interior y exterior de la misma y la eliminación de bajantes de pluviales que ha favorecido la filtración de agua; 2) La humedad capilar en la parte inferior de los muros internos de la vivienda abarcando todo el perímetro de los mismos, y en el sector de encuentro de muros de la vivienda e iglesia, 3) La erosión provocada por agua y falta de mantenimiento afectó a los revoques de los muros que fueron erosionándose hasta llegar a los ladrillos de las mamposterías. En el sector exterior correspondiente a galería el deterioro sufrido es muy notorio. Los muros perdieron sus revoques y mortero de barro, quedando expuestos los ladrillos. En algunos casos, esta situación ha llegado a provocar el derrumbe de parte del muro lateral de la vivienda, 4) eflorescencias y moho en mampuestos, y 5) desprendimientos del pavimento en galería y patio interno (Figura 9 y 10, Tabla 1).

 

Figura 10. Patologías detectadas en vivienda Familia Domínguez-Cantón.
 

 

 

Fuente: Elaboración propia.

 

Figura 11. Vista patologías presente en iglesia Fundacional
 

 

 

 

Fuente: Elaboración propia.

 

Tabla I. Patologías detectadas
 

 

Fuente: Elaboración propia.

Propuesta de intervención

 

Por una cuestión de espacio, se decide plantear un esquema general de soluciones y tratamientos de intervención en el conjunto arquitectónico, tomando aspectos de la propuesta metodológica de Silva y Palacios (2003).

1-               En primera instancia se debe proceder con limpieza de mamposterías y cubierta.

Mampostería: eliminación de material el mal estado o desprendido mediante uso de cepillo. eliminación de moho y suciedad se deben utilizar productos químicos que no deterioren los ladrillos cocidos y mortero de barro.

La reparación superficial de revoques se debe realizar con morteros semejantes a los originales.

Eliminación plantas parasitarias sin remover de los ladrillos y juntas.

Consolidación de grieta pared testera –galería lateral.

Consolidación de muros que presentan grietas o fisuras. Dado que estamos hablando de muros de mampuestos cocidos o ladrillos asentados en barro los autores recomiendan utilizar técnicas sencillas mediante llaves o costuras con elementos de madera dura con clavijas de distintos tipos o maderas con superficies rugosas.

Construcción de capa aisladora horizontal realizando cortes por segmentos alternados de 0.50 a 1 m y utilizar materiales eficaces para aislación. También se puede optar por realizar una barrera química de baja presión para evitar por capilaridad el ascenso de la humedad. Para ello se efectuarán agujeros a tres bolillos y con una inclinación de 45º y profundad de hasta 2/3 parte del espesor del muro. Posteriormente, se debe limpiar la zona con aire comprimido e inyectar, a baja presión, una mezcla compuesta por siliconas disueltas en agua al 3%y se le adiciona alcohol isopropílico al 4%.

Restauración de mampostería de ladrillo disgregada en muros y columnas. Luego aplicar revoque utilizando materiales similares a los originales.

2-               En segunda instancia en la cubierta reemplazar la chapa metálica actual por tejas cerámicas coloniales (perneras).

Reparación del maderamen que constituye la estructura portante.

Reparación de canales y conductos de bajada.

Restauración de mampostería disgregada sector de cornisas mediante reemplazo y ladrillos desprendidos utilizando materiales similares a los originales. Posteriormente efectuar revoque y molduras.

3-               Pavimentos

Reparación pisos de madera de interior de la vivienda.

Reparación o reemplazo de baldosas patio interno. Se considera como opción consolidar el pavimento existente y parquizar el resto del patio interno que servirá como desborde natural de actividades y como lugar de exposiciones al aire libre.

 

 

Discusión y conclusiones

 

Al momento de escribir esta presentación, tanto los datos de los relevamientos como del resto de las investigaciones continúan en proceso.

La vivienda, anexa a la iglesia, actualmente está compuesta por espacios cubiertos que corresponden a tres recintos contiguos y una galería techada que rodea toda la construcción en forma de L de oeste a norte. Además, posee un patio central, ámbito donde se desarrollaban muchas de las actividades cotidianas. El patio se abre de un modo franco hacia las que serían las mejores orientaciones, es decir, norte y este. Calvo (2006) sostiene que la conformación de una tira en la que se alinean tres recintos pareciera haber sido una tipología bastante extendida en la ciudad tucumana y puede observarse en otros ejemplos coloniales contemporáneos como el de Santa Fe La Vieja. El autor sostiene, que las viviendas se definían con cuerpos en forma de tira paralelos a la calle y las habitaciones se reducen a salas y aposentos dispuestos unos en pos de otros, unidos entre sí por puertas o vanos (Calvo, 2006). La ubicación de las aberturas también se efectuaba hacia el exterior de la vivienda, que posee una galería techada con columnas.

El análisis documental y datos recabados durante las entrevistas a miembros familia Domínguez permitieron abordar aspectos particulares del proceso de construcción y ocupación del conjunto arquitectónico con una cronología precisa en cuanto a su construcción original (año 1851) y restauración de la iglesia.

Con respecto a la vivienda, contamos con datos certeros sobre la cronología de construcción original, sincrónica con la iglesia, y relativa con respecto a la reconstrucción efectuada por el Dr. Eliseo Catón a comienzos Siglo XX. Sumado a ello, registramos la reparación de columnas y paredes a efectuadas entre fines siglo XX.  Toda esta información se corroboró en el diagnóstico inicial, tal como se pueden observar en las fotografías expuestas.

Con respecto al análisis de patologías, se llegó a la conclusión que el problema principal que presenta el conjunto arquitectónico es la humedad por filtración a través de la cubierta y la existencia de grietas debido a la ejecución incorrecta de algunos mampuestos, la falta de mantenimiento del mismo, la eliminación de bajantes de pluviales y el crecimiento de plantas en mampuestos. Por otra parte, la pérdida de parte de cubierta superior ha favorecido su deterioro y como consecuencia a la filtración de agua en el interior de la vivienda. En virtud de ello, se recomienda que la cubierta de la edificación se intervenga con carácter de urgencia. La humedad por capilaridad es otro factor que actúa negativamente en la conservación de la vivienda.

El resto de las patologías estudiadas, como los desprendimientos del pavimento y de los mampuestos o grietas y fisuras en mampuestos y cornisa revelan un daño severo en la estructura y deben ser reparadas de manera urgente.

Las propuestas de actuación efectuadas abogan por un principio de mínima intervención, reversibilidad de las actuaciones y autenticidad del edificio, manteniendo en la medida de lo posible la estética del mismo.

Consideramos que esta primera aproximación al análisis de la arquitectura de la Iglesia Fundacional – Vivienda Familia Domínguez demuestra que los edificios históricos no se constituyen como en elemento único, sino que, por el contrario, son el resultado de construcciones, destrucciones y transformaciones a lo largo de su historia. Es por ello, que no se trata de un edificio, sino de los sucesivos edificios y áreas que tuvieron distinto tipo de organizaciones y usos espaciales durante su tiempo de vida, de tal modo que lo que observamos representa el estado en un momento preciso de este conjunto arquitectónico evolutivo.

Además de ello, este conjunto arquitectónico adquiere una gran importancia patrimonial, por sus características arquitectónicas, por la asociación con personalidades, períodos históricos destacados (Elkin, 2017), por la tradición y la identidad del pueblo de Lules. Es importante en cuanto se constituye como referente de la propia historia de un lugar, siendo su existencia en sí misma, el reflejo de la realidad de un momento histórico determinado.

Poner en valor un edificio histórico implica no sólo restaurar, consolidar y recuperar física y materialmente sus componentes arquitectónicos y ornamentales, sino recobrar sus valores y significación históricos, estéticos y técnicos originales, para su conservación, difusión y transmisión al conjunto de la sociedad.

Estamos convencidos que este trabajo iniciado por el municipio es el paso inicial importante para una la intervención de los bienes patrimoniales. Sin embargo, hasta el momento, no se han implementado estrategias políticas de planificación adecuadas que contemplen a todo el conjunto arquitectónico. En virtud de ello, resulta necesario preservar de manera apropiada el legado de la historia, sobre todo si tenemos en cuenta la crónica de las actuaciones concretas efectuadas hasta el momento.

En tal sentido, consideramos que lo más importante, y urgente, es la implementación y diseño de mecanismos de intervención en dos grandes aspectos, por un lado, el técnico - constructivos, y por otro, el funcional - espacial de la vivienda de la familia Domínguez Cantón en particular, y de todo el conjunto arquitectónico en general. sin dejar de lado en el estudio la iglesia fundacional, como elemento fundamental del análisis global. Además de ello, es importante efectuar un programa de difusión y transferencia de conocimiento como procedimiento que permita la comunicación de los resultados obtenidos durante la ejecución del proyecto, junto con campañas didácticas y trabajos de concientización sobre importancia de la protección patrimonial de Lules.

 

 

Agradecimientos

 

Quisiera agradecer Director de Turismo de la Municipalidad de Lules Ariel Vallejo por su compromiso en este proyecto y a Mariela Guarino por su ayuda inconmensurable en todo este proceso. Al equipo de LAPI por el apoyo constante y a los evaluadores que con sus sugerencias enriquecieron el manuscrito.

 

 

Bibliografía

 

Acale Sánchez, F. (2016). Metodología para el análisis histórico constructivo en edificios granadinos. Universidad de Granada.

Caballero Zoreda, L. y Latorre González Moro, P. (1995). La importancia del análisis estratigráfico de las construcciones históricas en el debate sobre la restauración monumental. Informes De La Construcción, 46(435), 5–18, Madrid.

Calvo, L. M. (1990). La vivienda en Hispanoamérica. El caso de Santa Fe. Revista América (9).  http://www.cehsf.ceride.gov.ar/america_09/02-calvo_vivienda.html

Dies Cusi, E. (2003). Estudio Arqueológico de estructuras: Léxico y metodología. Colegio Oficial de Doctores y Licenciados en Filosofía y Letras y en Ciencias de Valencia, Valencia.

Elkin, D. C. (2017). Arqueología de naufragios históricos en la costa atlántica fueguina. En Elkin, D. C.; Murray, C.; y M. Grosso (Eds.), Patrimonio a orillas del mar: Arqueología del litoral atlántico de Tierra del Fuego, (pp. 103-145). Editora Cultural Tierra del Fuego.

Guerra Orozco, M C. (2017). Historia del Municipio de Lules. Colección Historia de los Municipios, siglos XIX y XX, Ed. Imago Mundi.

Huerta, S. (2004). Arcos, bóvedas y cúpulas. Geometría y equilibrio en el cálculo tradicional de estructuras de fábricas. Instituto Juan De Herrera, Escuela Técnica Superior de Arquitectura.

Muñoz, M. y Tabales Rodríguez, M. A. (2010). Arqueología Aplicada al Estudio e Interpretación de Edificios Históricos. Últimas Tendencias Metodológicas. Editorial Ministerio de Cultura, Subdirección General de Publicaciones, Información y Documentación.

Páez, G. R. (2002). Relevamientos arquitectónicos en arqueología urbana y conservación del patrimonio construido. Arqueología Histórica Argentina, Actas del 1er. Congreso Nacional de Arqueología Histórica, (pp. 473 – 485). Editorial Corregidor.

Silva, M. B. y N. A. Palacios. (2003). La iglesia vieja de Lules (Provincia de Tucumán). Propuesta preliminar para su reutilización como museo arqueológico y casa de la cultura de Lules. Manuscrito.

 



[1] Archivo Histórico de Tucumán (en adelante AHT), Sección Protocolos, Serie A, Tomo 24, 1845 – 1849, Fs. 83v a 85.

[2] Archivo La Gaceta, sobre Nº 14663.

[3] AHT, Sección Administrativa, Legajo 4, Vol.1, Año 1896.

[4] Sección Protocolos, Serie A, T. 31.

[5] Archivo Diario La Gaceta, Sobre Nº 14663, Historia de Lules, 29/6/1990.